Přejít na obsahovou část stránky

D400 - E600

Beton

30x30-40x40

Faserfix point KS
  • odolný litinový kryt v různých designech uspokojí náročné oko
  • vpust dodáváme včetně koše na nečistoty a pachového uzávěru
  • high-tech beton vyztužený čedičovými vlákny je ekologický, nehořlavý a zároveň vydrží opravdu dlouho
  • nízká stavební výška ušetří místo pro další vedení kanalizačního potrubí
  • dvoudílná i třídílná varianta má větší instalační výšku pro instalaci například jako revizní šachta do střech podzemních garáží 
  • vpust můžete použít i jako pojížděnou nátokovou šachtu před menšími vsakovacími objekty

Kde faserfix point ks použít

parkovani

PARKOVIŠTĚ A REZIDENČNÍ STÁNÍ

dvory

DVORY

namesti_5

NÁMĚSTÍ

cerpaci-stanice

ČERPACÍ STANICE

okap_1

PRVEK POD KOLENA OKAPOVÝCH SVODŮ

zoo

ZOO VÝBĚHY ZVÍŘAT

maly-prumysl

MENŠÍ PRŮMYSLOVÉ PLOCHY

  • NÁHLED SYSTÉMU

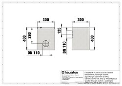
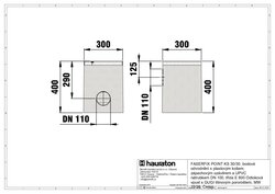
    FASERFIX POINT KS 40/40

    NÁHLED SYSTÉMU
  • ROZMĚRY A TŘÍDY ZATÍŽENÍ

    Systém FASERFIX POINT KS na Vás čeká v těchto jmenovitých rozměrech :

    • 30/30 = rozměry 300x300 mm, třída zatížení D 400 - E 600
    • 40/40 = rozměry 400x400 mm, třída zatížení E 600

    *Třídy zatížení jsou odvislé od použitého krytu.

PODROBNÉ TECHNICKÉ INFO

PRODUKTOVÁ videa

Co se o systému vyplatí vědět?

1
2
3

Dejme si sušenky a kávu

(Souhlas s cookies)

Tento web bereme jako naši virtuální kancelář. Abychom si tu s Vámi mohli dát kávu a sušenky (soubory cookies), potřebujeme Váš souhlas. Děkujeme, že nám tím pomáháte zlepšovat tyto stránky a Váš zážitek. Tak pojďte dále!

Nastavení cookies

Vaše soukromí je pro nás důležité, budeme se proto k Vašim datům chovat slušně. Níže si můžete nastavit jednotlivé souhlasy.